PROJECTS
NEWS
TEAM
CONTACT
PROJECTS
NEWS
TEAM
CONTACT
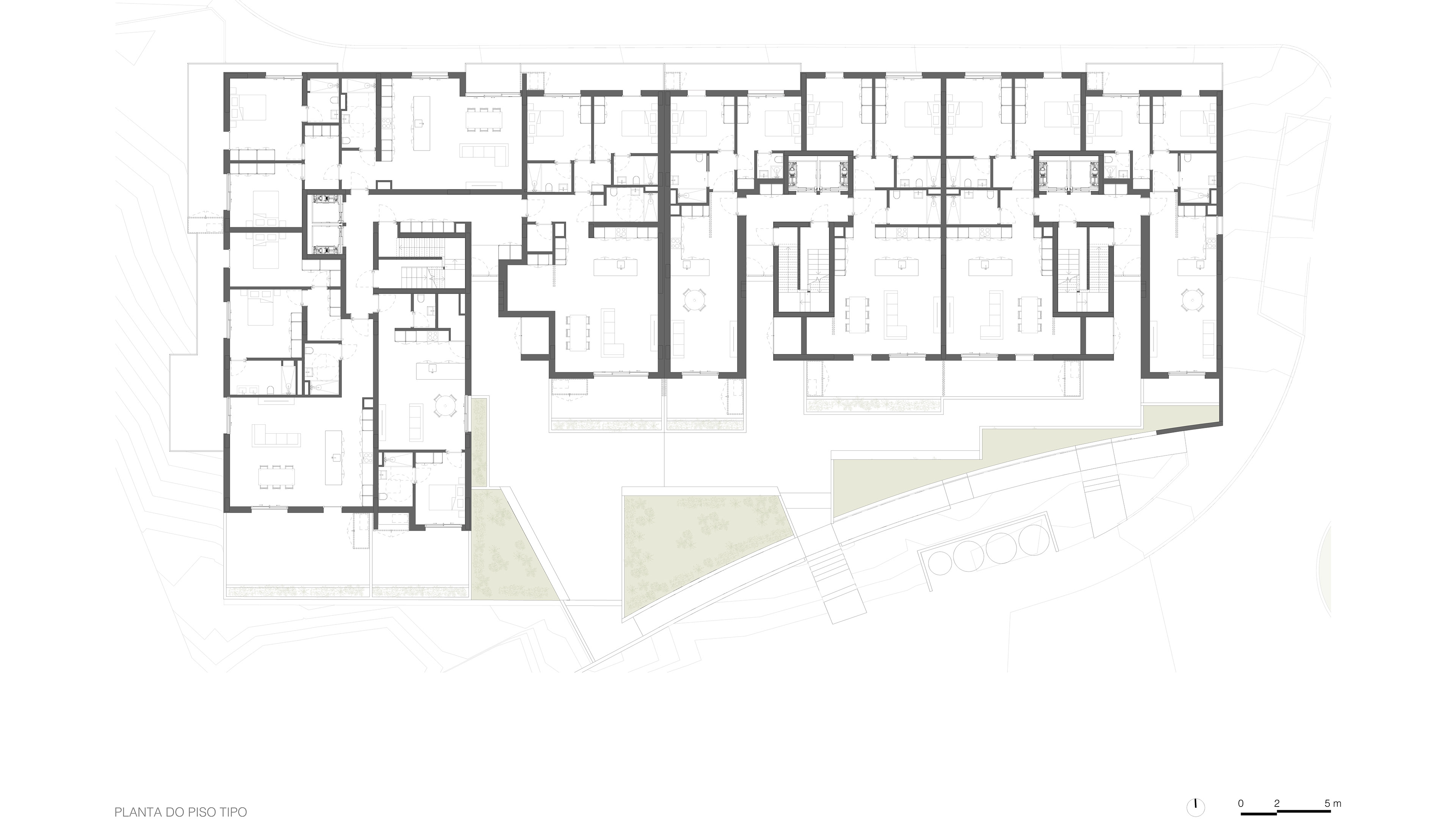
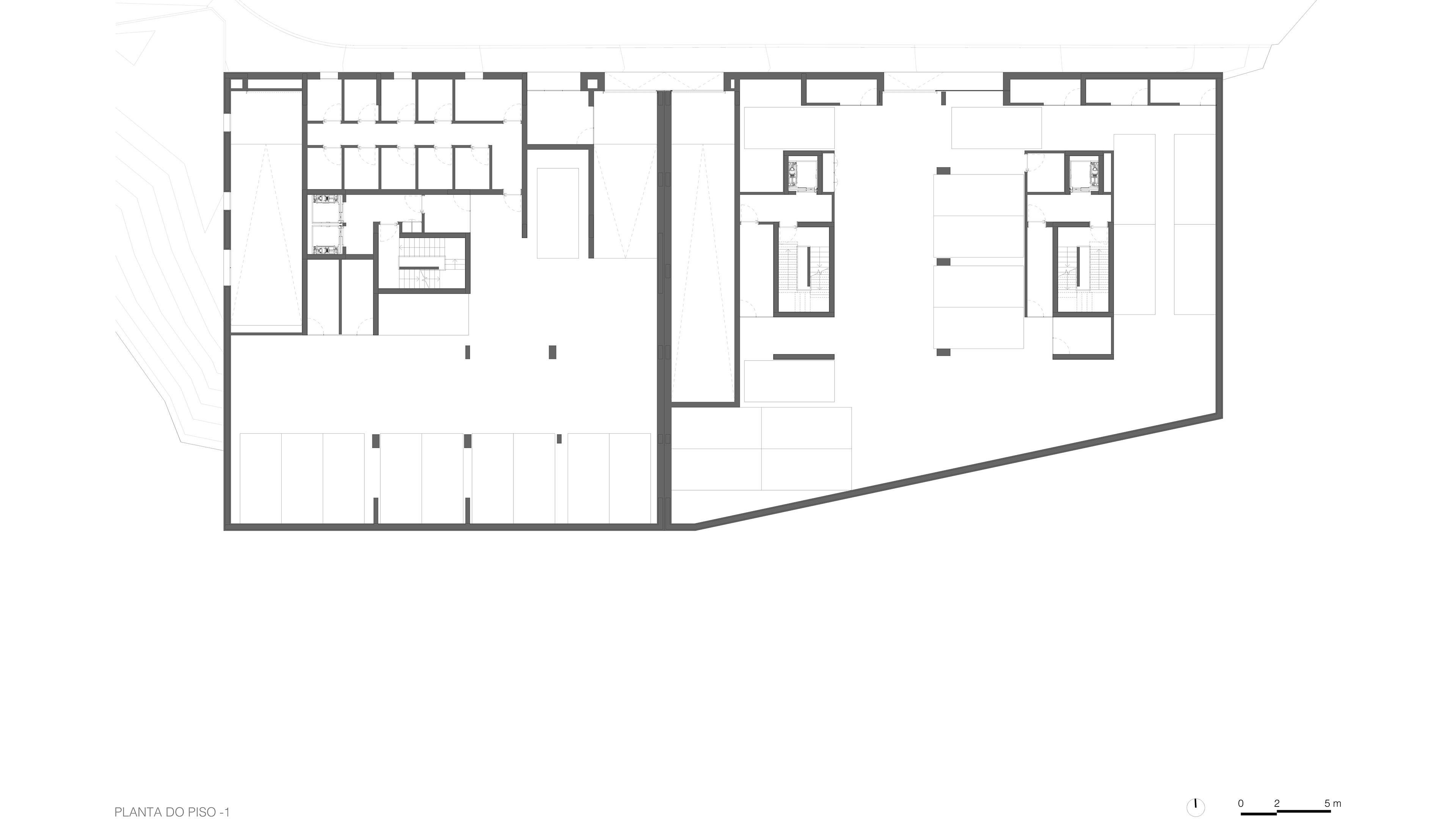
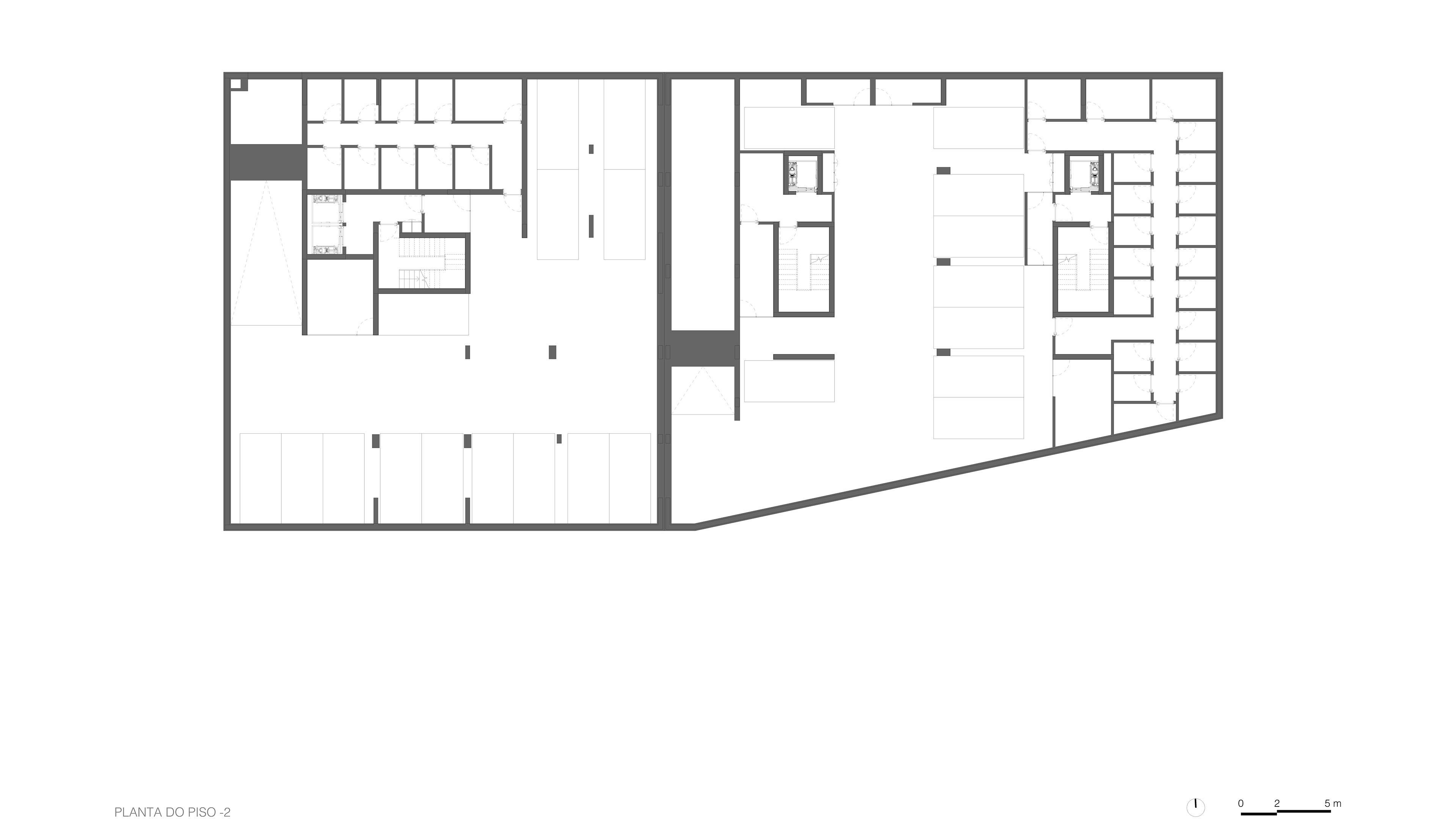
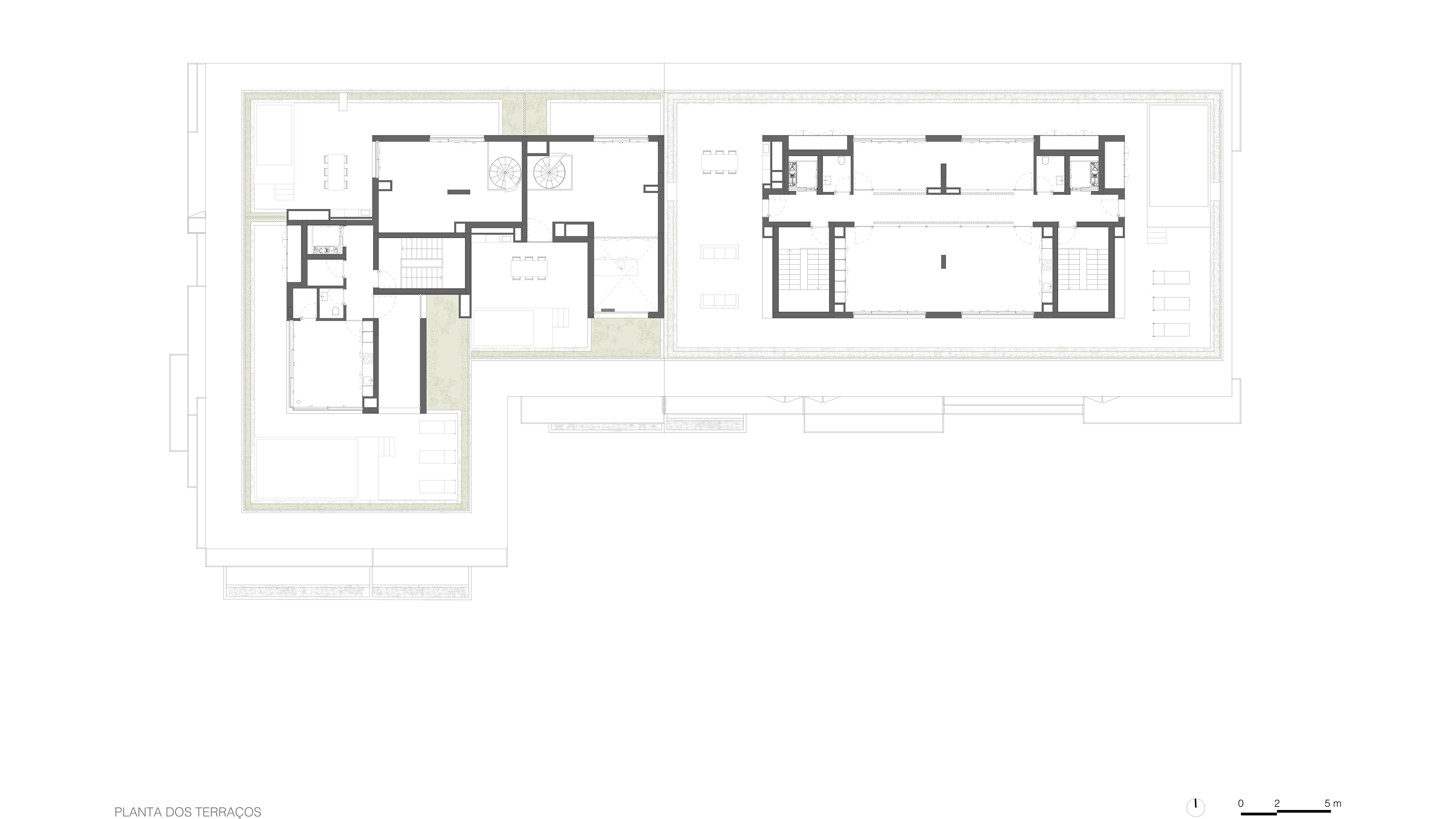
SOBREIRO RESIDENCES
Technical Sheet
Type: Housing Complex
Location: Mafra, Portugal
Area: 10 570 m²
Specialties: GAPLR
Client: Destaque Vitalício
↑
Back to Top